Community Facilities

As part of the Relocation Master Plan grant, schematic plans have been prepared for three community facilities - a new community center, a police and courts building and a maintenance hub. 

Community Center Conceptual Floor Plan

The new community center will be located at the heart of the new village and will double as an emergency evacuation shelter. The center will be designed to allow more flexible meeting space than exists in the existing community center in the Lower Village, with movable partitions to allow for both large and small gatherings. A large storage area will be provided for emergency supplies, such as tents and cots. The shower and bathroom facilities will be oversized to accommodate increased demand during a disaster.

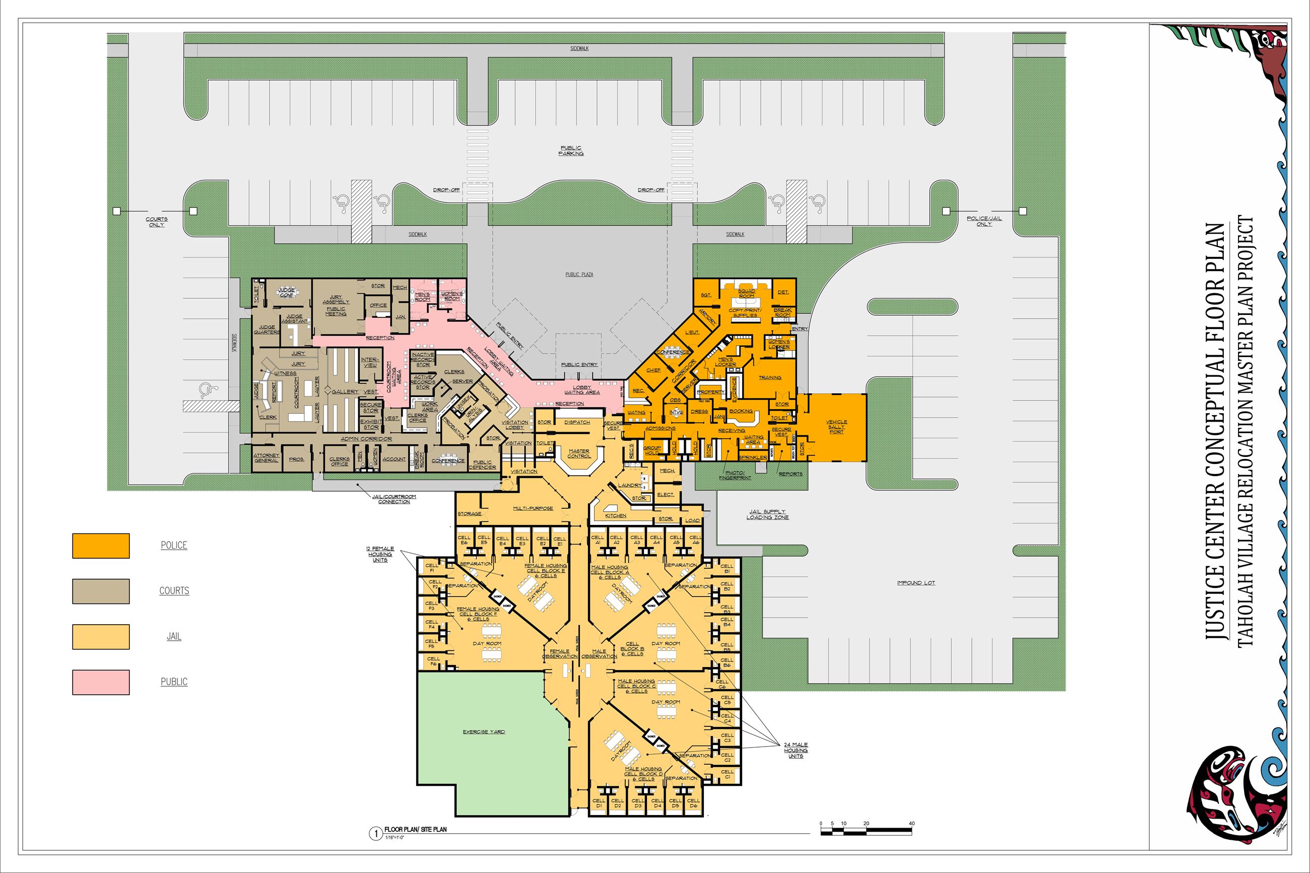
Justice Center Conceptual Floor Plan

Relocating the police facility is a priority. The existing police facility is located two blocks from the seawall. The police need to be available to help residents in the case of a tsunami, rather than saving themselves and evacuating prisoners. The current court facility is located across a parking lot from the police station. The new plan combines the two facilities and will allow for direct access between the jail and the court without the need to walk prisoners outside to the court. Both facilities are currently undersized and relocation will allow for needed expansion.

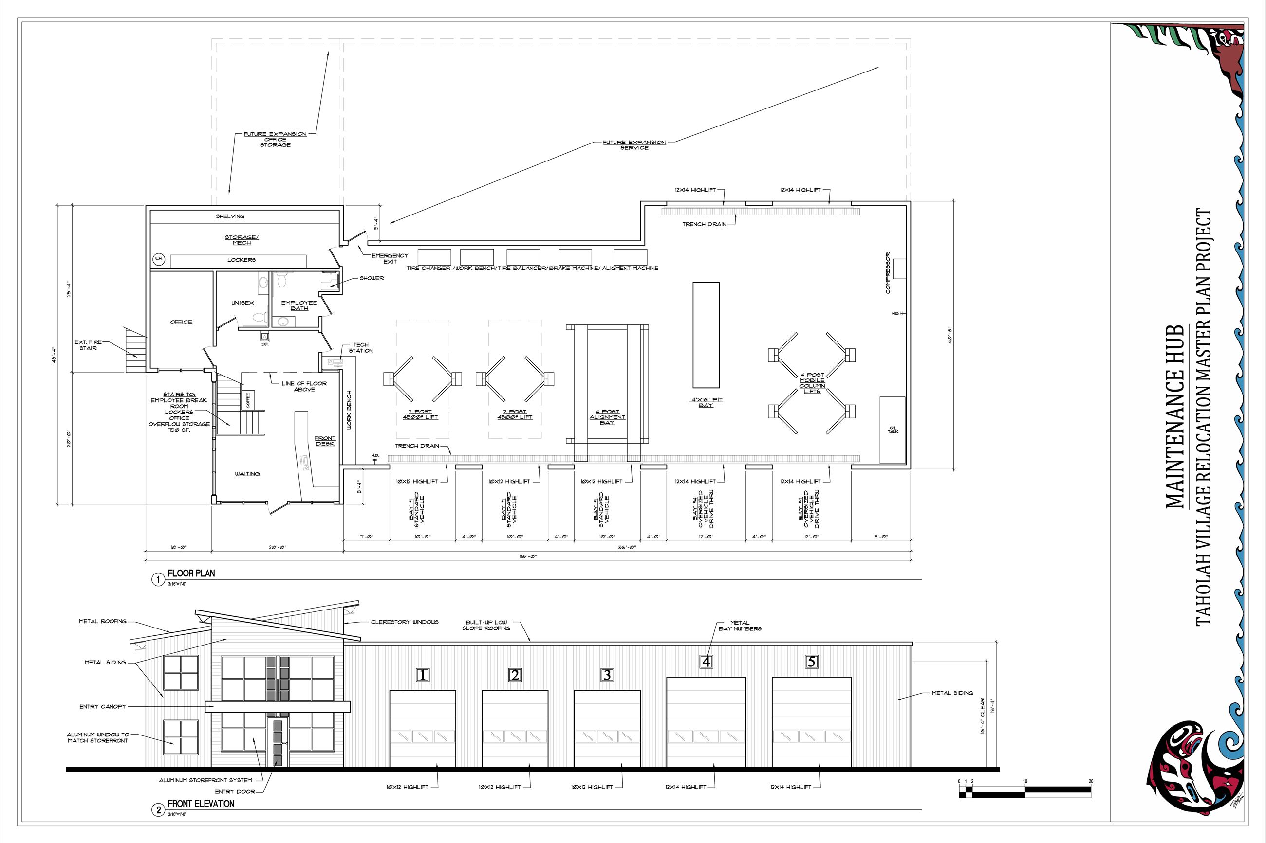
Maintenance Hub Conceptual Floor Plan

The Maintenance Hub will include construction management, building maintenance, and roads maintenance programs and the RezRacer buses. With this new facility, maintenance staff will be able to house their vehicles in a secure area out of the weather. The weather and sea air damage the vehicles and increase maintenance costs of the vehicles. The maintenance hub is envisioned to be located north of the Administration Building on the lower ball field, where the Rez Racers are currently parked.

For more information or to give feedback and suggestions to the Project Team, please contact Kelsey Moldenke, Charles Warsinske or Sue Kalama by email or at (360) 276-8211, extensions 1038, 6821, or 6824 respectively. Artwork by Doug James.